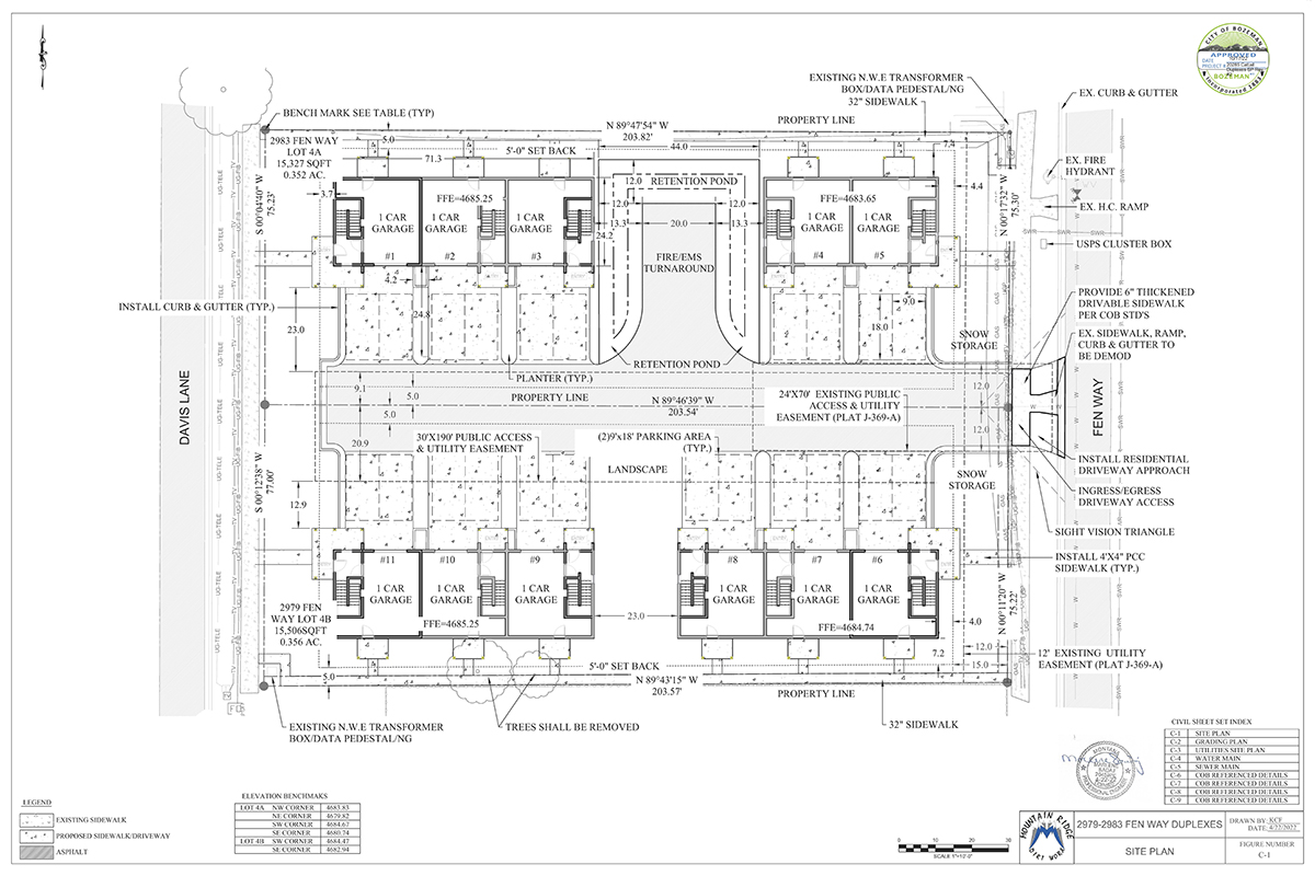
Cattail Duplexes

SEAK worked with local developers, architects, and contracts to gain various City of Bozeman and State approvals for the development of an 11-unit duplex/triplex project off of Davis Lane. SEAK secured City of Bozeman site plan approval, infrastructure approval, stormwater permits, street cut permits, and building permits for the project. SEAK also secured DEQ water and sewer main extension approval for the project. SEAK provided construction inspection and documentation through the infrastructure construction phase and will assist in close out of all applicable permits at project close. SEAK is currently assisting in condo declaration review through the City of Bozeman for this project.





Let's Work Together

GET IN TOUCH